Verkocht:Schuitenberg 30A, 6041 JK Roermond - Foto
Verkocht
+8

Schuitenberg 30A 6041 JK Roermond

  • Appartement
  • 3 kamers
  • 2 slaapkamers
  • 1 badkamers
  • Bouwjaar 1923
  • 64 m² gebruiksoppervlakte
  • Gestoffeerd
  • D Energielabel D

Beschrijving

Welkom bij de Schuitenberg 30A in Roermond, een comfortabel 3-kamerappartement gelegen op een toplocatie in het bruisende stadscentrum. Dit sfeervolle appartement biedt een lichte woonkamer, twee ruime slaapkamers en een praktische indeling. Ideaal voor starters of als pied-á-terre voor wie van het stadsleven wil genieten. Het prachtige instapklare gemeubileerde en gestoffeerde appartement met 2 slaapkamers en een groot balkon is zeker een bezoek waard!

Ligging
Gelegen in het hart van Roermond, op een uitstekende locatie met alle voorzieningen binnen handbereik. De woning ligt op loopafstand van het gezellige stadscentrum, waar je kunt genieten van een breed aanbod aan winkels, restaurants, cafés en culturele bezienswaardigheden. De nabijgelegen Roerpromenade biedt prachtige wandelroutes langs de rivier, ideaal voor ontspanning.
De bereikbaarheid is ook uitstekend; het NS station van Roermond ligt op enkele minuten afstand en met de nabijheid van de A73 en N280 zijn belangrijke uitvalswegen snel bereikbaar. Dit maakt de ligging ideaal voor zowel stedelijke voorzieningen als snelle verbindingen naar andere steden.

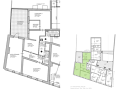
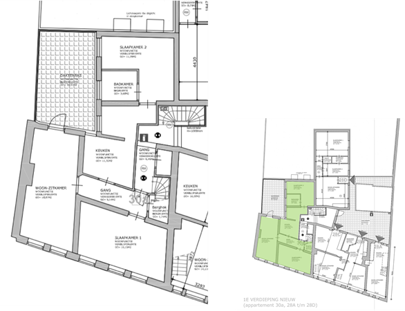
Indeling :
Entree :
Via een trapopgang krijg je toegang tot het appartement op de eerste verdieping.

Appartement :
Je komt binnen in de hal en vervolgens in de keuken en eetkamer. De sfeervolle keuken be-schikt over onder- en bovenkasten, een spoelelement, koelkast, vriezer en een combi magnetron. Vervolgens loop je door naar de woonkamer. De woonkamer is heerlijk licht door de grote raampartij en gezellige uitzicht op het monumentale pand en aan de andere zijde een royaal dakterras. Aan de overloop van de keuken grenst de badkamer en nog een slaapkamer. Het appartement is recentelijk gerenoveerd en voorzien van een mooie laminaatvloer.

Bijzonderheden :
Bouwjaar : 1923
Inhoud : 160 m3
Woonoppervlakte : 64 m2, conform NEN2580 voorwaarden gemeten;
- VVE bijdrage € 75,- per maand;
- Gedeeltelijk voorzien van dubbel glas;
- Verwarming en warm water middels CV ketel Remeha bouwjaar 200;
- Energielabel D;
- Gezamenlijke berging voor fiets(en);
- Aanvaarding/oplevering in overleg.

Informatieverstrekking, maten en oppervlakten – geen aansprakelijkheid MMX Makelaars
Deze informatie is door MMX Makelaars met de grootste zorgvuldigheid samengesteld. Wij aanvaarden echter geen enkele aansprakelijkheid voor eventuele onvolledigheid, onjuistheid of anderszins, dan wel voor de gevolgen daarvan. Alle opgegeven maten en oppervlakten zijn indicatief. Hieraan kunnen geen rechten worden ontleend.

Kaart

Kenmerken

Overdracht

Referentienummer
18
Vraagprijs
€ 235.000,- k.k.
Servicekosten
€ 75,-
Inrichting
Ja
Inrichting
Gestoffeerd
Status
Verkocht
Aanvaarding
In overleg
Aangeboden sinds
Vrijdag 28 februari 2025
Laatste wijziging
Woensdag 25 juni 2025

Bouw

Type object
Appartement, bovenwoning
Woonlaag
1e woonlaag
Soort bouw
Bestaande bouw
Bouwperiode
1923
Isolatievormen
Gedeeltelijk dubbel glas

Oppervlaktes en inhoud

Woonoppervlakte
64 m²
Inhoud
160 m³
Oppervlakte overige inpandige ruimten
6 m²

Indeling

Aantal bouwlagen
1
Aantal kamers
3 (waarvan 2 slaapkamers)
Aantal badkamers
1 (en 1 apart toilet)

Locatie

Ligging
Dichtbij openbaar vervoer
In centrum
Nabij school

Energieverbruik

Energielabel
D
Energie-index
1,99

CV ketel

CV ketel
Remeha
Warmtebron
Gas
Bouwjaar
2000
Combiketel
Ja
Eigendom
Eigendom

Uitrusting

Warm water
CV-ketel
Verwarmingssysteem
Centrale verwarming

Vereniging van Eigenaren

Periodieke bijdrage
Ja

Kadastrale gegevens

Kadastrale aanduiding
Roermond D 5488
Omvang
Geheel perceel

Media

Foto's

Plattegronden